江苏振强机械科技股份有限公司 >> 产品中心 >> 振动输送机一号彩票 >> 空气输送斜槽(XZ型)
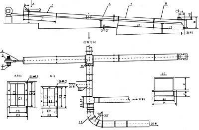
一号彩票 空气输送斜槽主要组成零部件有:进料溜管、直槽体、槽架、窥视窗、出料溜管。
空气输送斜槽在输送物料的过程中没有运动的零件,所以与同功率的胶带输送机、螺旋输送机、刮板输送机相比,具有磨损少、易维护、耗电少、用材省、无噪音、密闭好、构造简单、操作安全可靠等优势!
空气斜槽输送机由数个薄钢制成的槽子联接组成,并沿其输送方向布置成一定的斜度。空气输送斜槽槽体沿着输送方向安装成向下倾斜4%~6%的斜度。
震动输送机合金粉生产工艺相对简单,这三种铜粉的生产工艺流程依次为: 电解铜粉生产工艺流程为电解铜板-熔炼-电解-洗粉-真空干燥-分级-合批-包装。 低松装密度水雾化铜粉生产工艺流程为:电解铜板-熔炼-水雾化-真空烘干-高温氧化-破碎空气输送斜槽-..
一号彩票© 2022 江苏振强机械科技股份有限公司 技术支持: