刮板给煤机简介
刮板给煤机的结构
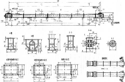
一号彩票刮板式给煤机主体包括:头部箱体、进煤口箱体、规范节、调整节、出煤口箱体、闸门、刮板链条组和落煤接管,刮板式给煤机由给煤机主体和驱动装置组成,刮板式给煤机的驱动装置包括:减速器、电动机、电磁或变频调速装置。刮板式给煤机在给煤时,刮板式给煤机的驱动装置通过链条带动刮板运动,原煤在刮板推力和自身内摩擦力作用下,形成一股高于刮板自身高度的连续物料流,不时地从入料口输送到出料口,实现物料的输送。
刮板给煤机的性能特点
一号彩票刮板式给煤机的给煤量与电机转速基本成线性关系,可通过电磁或变频调速装置调整电机转速,实现出力结构特点本机采用全封闭箱式结构,箱体与箱体之间采用全焊接形式,适于正负压力状态下运行,并设有断链报警装置。
刮板式给煤机具有造型美观、寿命长、维修方便、工作稳定、煤种适应性强等特点。刮板式给煤机也可以作为给料设备用于化工、冶金、建材、煤炭等部门 。

技术参数
型  号  |             B  |             B1  |             B2  |             B3  |             B4  |             b  |             t  |             C  |             D  |             d (D4) gc3  |             d1 (d4)  |             F  |         
MS16  |             160  |             410  |             260  |             305.5  |             510  |             16  |             58.5  |             0  |             258.69  |             80  |             55  |             390  |         
MS20  |             200  |             510  |             300  |             268.5  |             610  |             20  |             74.2  |             0  |             324.01  |             95  |             70  |             410  |         
MS25  |             250  |             600  |             350  |             425.5  |             700  |             24  |             90.0  |             0  |             412.86  |             110  |             85  |             440  |         
MS32  |             320  |             800  |             420  |             495.0  |             900  |             32  |             116.5  |             130  |             514.76  |             135  |             110  |             650  |         
MS40  |             400  |             890  |             500  |             578.0  |             990  |             36  |             137.2  |             150  |             514.76  |             160  |             130  |             650  |         
 
型  号  |             F1  |             f  |             f1  |             H  |             H1  |             -H2  |             H3  |             H4  |             h  |             h1  |             h2  |             J  |         
MS16  |             150  |             88  |             650  |             289.0  |             470  |             440  |             450  |             261  |             100  |             161  |             60  |             350  |         
MS20  |             150  |             108  |             700  |             329.0  |             530  |             480  |             530  |             296  |             100  |             196  |             80  |             420  |         
MS25  |             150  |             128  |             750  |             389  |             630  |             540  |             660  |             346  |             100  |             246  |             100  |             510  |         
MS32  |             230  |             168  |             1070  |             572.0  |             764  |             723  |             820  |             408  |             100  |             308  |             150  |             670  |         
MS40  |             230  |             198  |             1070  |             612.5  |             764  |             763  |             860  |             408  |             100  |             308  |             150  |             800  |         
 
型  号  |             J1  |             J2  |             J3  |             L  |             L0  |             L1  |             L2  |             L3  |             L4  |             L5  |             n×l  |             n1×l1  |             n2×l2  |         
MS16  |             150  |             550  |             450  |             800  |             1500  |             700  |             2×115  |             2×160  |             4×120  |         ||||
MS20  |             150  |             610  |             510  |             850  |             1500  |             920  |             2×135  |             3×130  |             4×145  |         ||||
MS25  |             150  |             650  |             550  |             900  |             1500  |             1080  |             2×160  |             3×160  |             5×134  |         ||||
MS32  |             230  |             900  |             800  |             1270  |             2000  |             1145  |             3×130  |             4×160  |             6×145  |         ||||
MS40  |             230  |             900  |             800  |             1270  |             2000  |             1145  |             3×156  |             5×154  |             6×180  |         ||||
 
型号  |             n3×l3  |             N-d2  |             N1-d3  |             N2-d4  |             M  |             行程S  |             S1  |             δ  |             δ  |             X  |             Y  |         
MS16  |             4×130  |             8-12  |             12-12  |             12-12  |             240  |             150  |             300  |             6  |             4.5  |             ||
MS20  |             4×145  |             10-12  |             14-12  |             12-12  |             280  |             200  |             380  |             6  |             4.5  |             ||
MS25  |             4×155  |             10-12  |             16-12  |             12-12  |             330  |             250  |             430  |             6  |             4.5  |             ||
MS32  |             6×145  |             14-14  |             20-14  |             18-14  |             420  |             250  |             450  |             6  |             6.0  |             ||
MS40  |             6×145  |             16-14  |             22-14  |             18-14  |             500  |             250  |             450  |             6  |             6.0  |             
