一号彩票

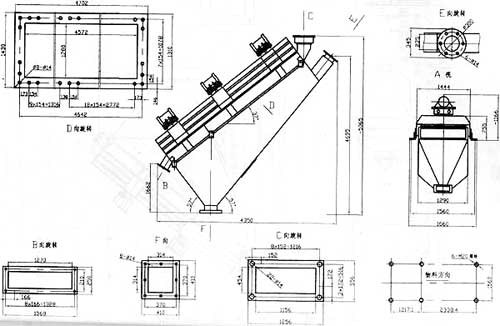
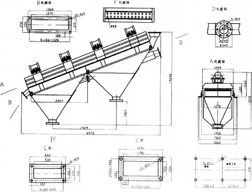
振网筛(ZWS型)

ZWS振网筛用途及特点

  ZWS型振网筛适用于对松散的复合肥料及其它松散的细物料进行分级。振网筛(ZWS型)是以振动电机做为振动源,牵引筛网及筛框振动,实现物料分级。振网筛(ZWS型)振幅可调,筛分效率高,生产能力大,动负荷小,噪音低,密封防尘,维修方便。

振网筛

ZWS振网筛型号及参数

振网筛安装尺寸:

型号 筛  面 给料粒度(mm) 处理量(t/h) 振次(l/min) 双振幅(mm) 功率(kw) 外形尺寸
长×宽×高(mm)
总重量(kg)
层数 面积(m2 倾角(°) 筛孔尺寸(mm) 结构
ZWS1230 1 3.6 37 10×40 编织 ≤60 30-35 1450 3-5 0.85×2 3090×1700×3169 1623
2ZWS1230 2 3.6 33 上:4×50
下:1.4×50
编织 ≤60 30-35 1450 3-5 0.85×2 3301×1680×3300 2300
ZWS1245 1 5.4 37 上:4×50
下:1.4×50
编织 ≤60 45-60 1450 3-5 0.85×3 4350×1660×5066 2631
2ZWS1245 2 5.4 37 上:4×50
下:1.4×50
编织 ≤60 45-60 1450 3-5 0.85×3 4496×1660×5648 3612
ZWS1260 1 7.2 20 4×25 编织 ≤60 60-90 1450 3-5 0.85×4 6576×1660×4240 3290
2ZWS1260 2 7.2 37 上:4×50
下:1.4×50
编织 ≤60 60-90 1450 3-5 0.85×4 5678×1660×6156 4532


上一页:电磁振动筛

联系方式

  • 公司名称:江苏振强机械科技股份有限公司
  • 电话:0513-88800222
  • 地址:江苏省海安海安工业园区
  • 邮箱:ntzqjx@aliyun.com

振网筛(ZWS型)相关的推荐产品

振网筛(ZWS型)的同类产品